本科生教育
本科生教育
创新创业
2016年结构建模赛事专题
伟德源自英国始于1946第五届大学生结构设计竞赛
伟德源自英国始于1946第五届大学生结构设计竞赛暨湖南省第五届大学生结构设计竞赛选拔赛于 2016年10月16日成功举办。本次竞赛有99组共计297名学生参加,最终评选出一等奖8名、二等奖12名、三等奖20名,创意美观奖10项。此次竞赛中涌现出许多自重轻,承载力高,抗冲击稳定性优良的参赛作品,作品水平达到历史新高,也为接下来的全国大学生结构设计竞赛湖南省分区赛打下良好的基础。
湖南省第五届大学生结构设计竞赛
湖南省第五届大学生结构设计竞赛于2016年11月18日至20日在长沙学院成功举办,来自省内29所院校的65支队伍参加了本次竞赛,伟德官网共选派4组队伍参加了现场竞赛。本次竞赛共设5个一等奖,伟德官网选手力挫群雄,陈炳初博士、李永贵博士、汪建群博士指导的队伍现场完成的结构模型分别以第一名、第二名和第五名的好成绩荣获3项一等奖,同时斩获一个参加全国总决赛的资格。本届竞赛再次刷新了伟德官网在湖南省大学生结构设计竞赛中的单年成绩,展现了伟德官网的结构设计竞赛强校风范。
湖南省第五届大学生结构设计竞赛赛题简介
本届竞赛的赛题为纸质T形结构模型设计,赛题以悬臂施工桥梁结构为背景,主要目的是考察纸质T形结构模型在竖向荷载和水平冲击荷载作用下的承载能力,使学生通过竞赛活动能运用专业知识做出合理结构设计。
结构模型总体布置如图1所示,为一个双悬臂T形刚构。此T构模型可分为梁、墩和基础三个部件,梁直接承受竖向荷载,墩直接承受水平冲击荷载,基础埋置于填装砂子的容器中,提供模型的支承。

图1 结构模型总体布置图
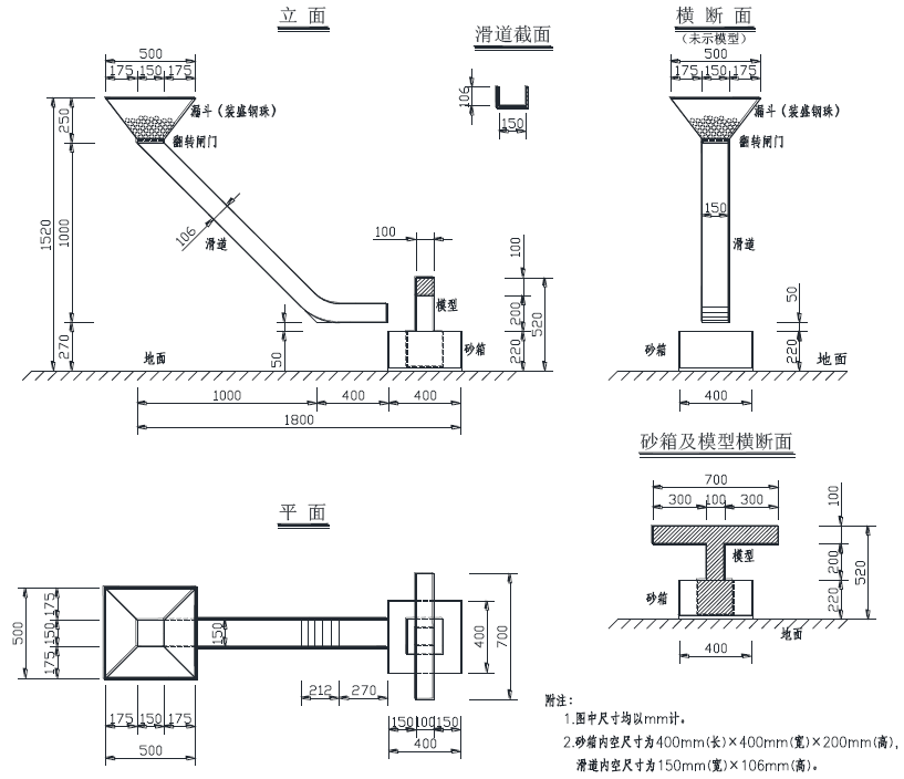
模型加载测试装置由四部分所组成,如图2所示,分别为安装模型的砂箱装置、装载钢珠用的漏斗装置、滑道装置,以及固定漏斗与滑道的支撑结构。试验加载分为两个阶段,第一阶段为包括对称载工况和偏载工况在内的两个5kg和一个10kg砝码分四级放置在梁顶面的加载区域的竖向荷载加载,第二阶段为保持竖向偏载工况下释放漏斗内钢珠(直径25mm,每颗重约64.2g,总重为40kg)的一次性冲击加载,加载后须保持20s。

图3 模型加载装置图
